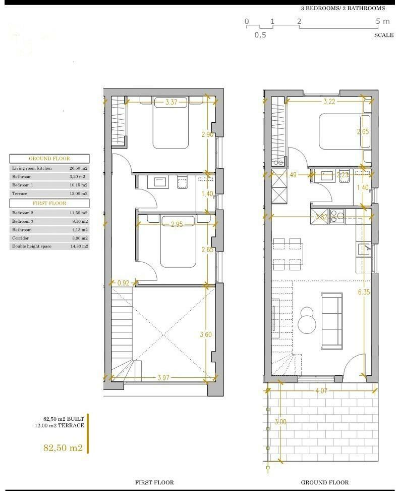
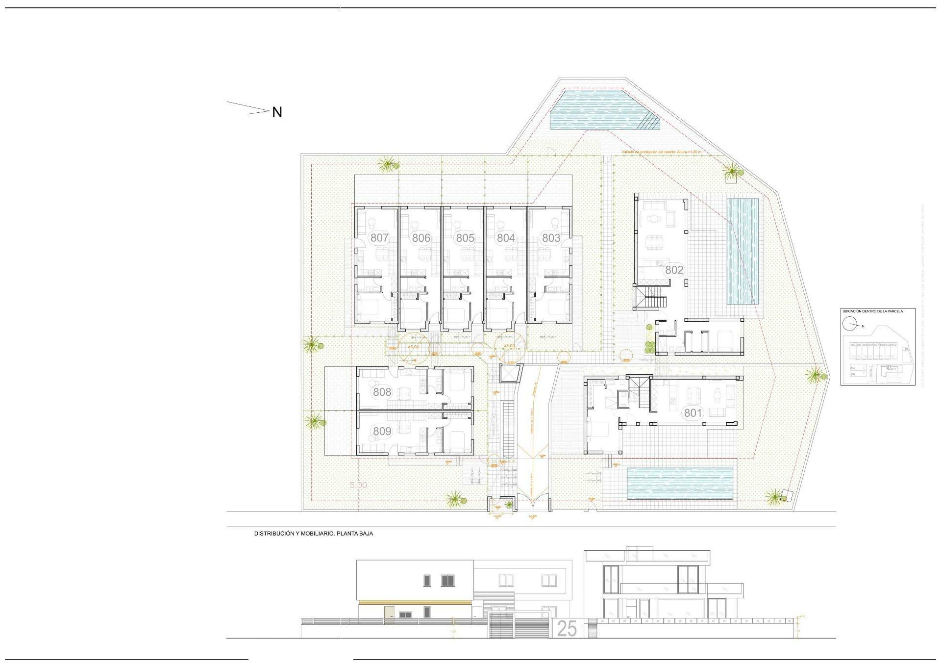
Villamartin / P7728
Exclusive new development residential complex in orihuela costa
Townhouse
3
2
93m2












