Villamartin / P7727
Exclusive new development residential complex in orihuela costa
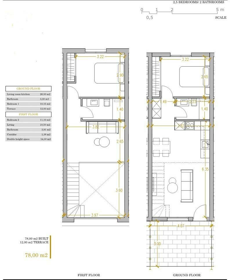
Townhouse
2
2
93m2











