Torrevieja / La Mata / P7720
New build bungalows with sea views in la mata, torrevieja
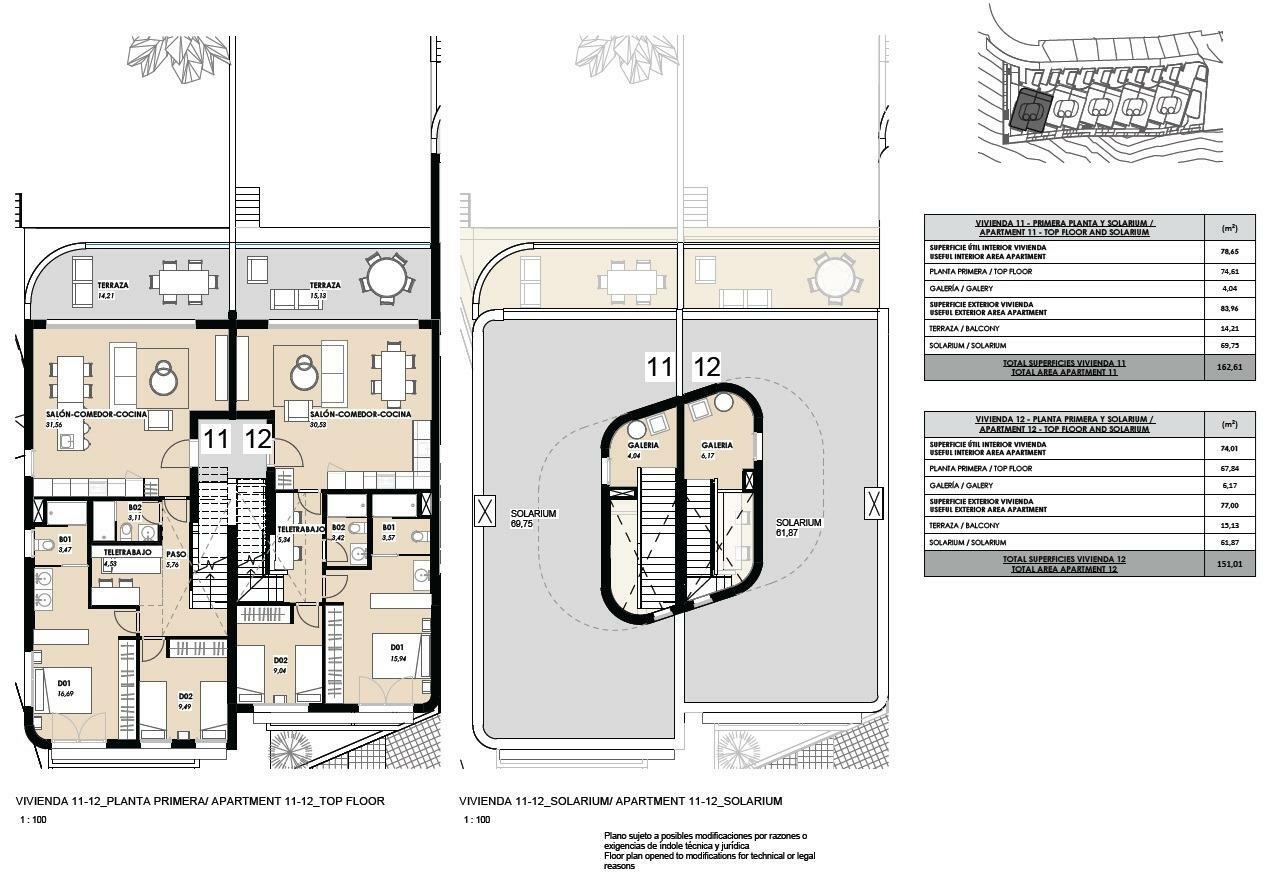
Penthouse
La Mata
2
2
151m2
Similar Properties
€538,000
Modern apartments for sale just 250 m from el cura beach in torrevieja, costa blanca
Ref: P31961
View Property


















