Pilar de la Horadada / Mil Palmeras / P7257
New build apartments and bungalows in mil palmeras
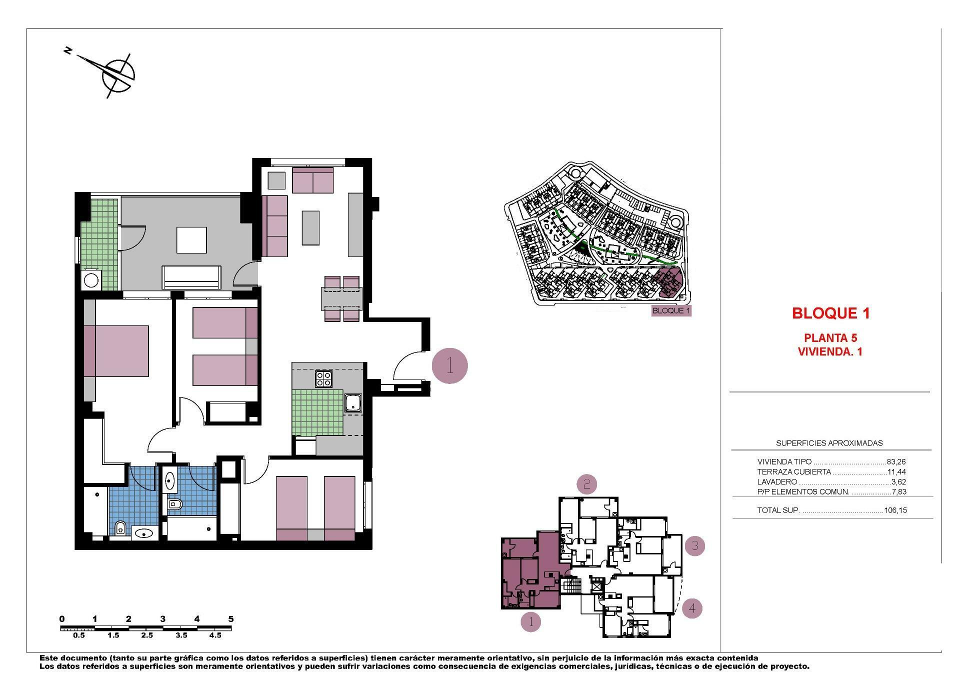
Penthouse
Mil Palmeras
3
2
106m2
Similar Properties
Pilar de La Horadada
€349,900
Key Ready One Level Detached Villa with Pool in Pilar de la Horadada
Ref: PIL200
View PropertyTorre de la Horadada
€295,900
New mediterranean apartments just 100 m from the beach in torre de la horadada
Ref: P31851
View PropertyTorre de la Horadada
€295,900
New mediterranean apartments just 100 m from the beach in torre de la horadada
Ref: P31850
View Property






