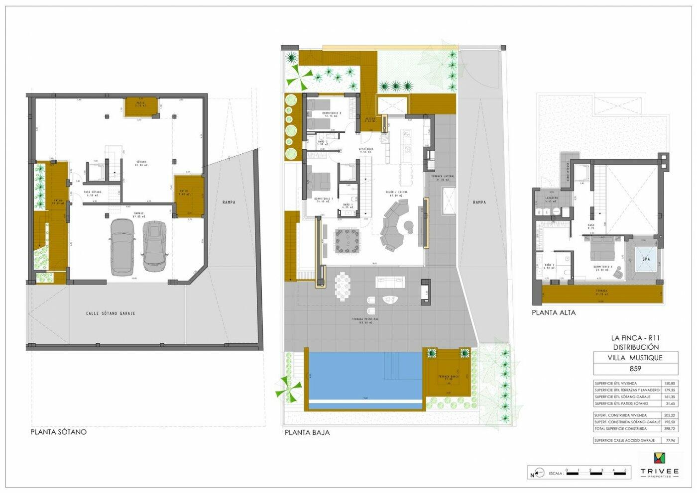
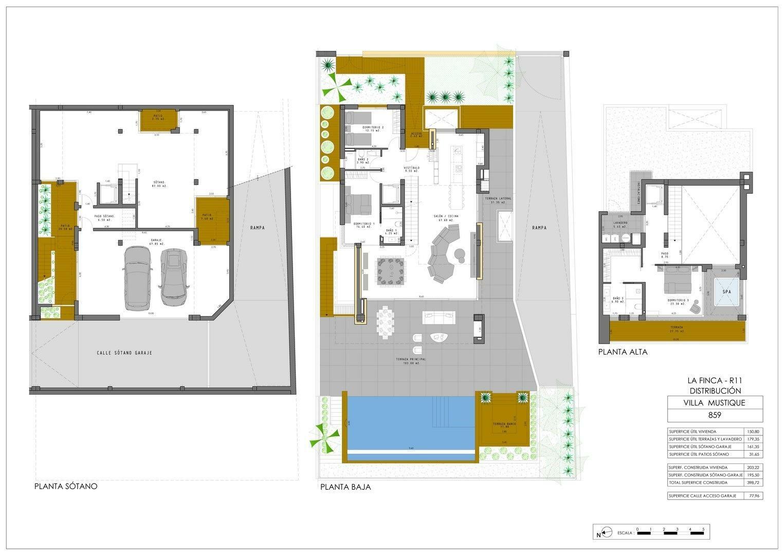
New build luxury first line villa in algorfa golf course
Villa
Algorfa
3
3
203m2
Similar Properties
Algorfa
€995,000
Luxury Detached Villa on 10,000 m2 Plot in Algorfa close to La Finca Golf Resort
Ref: LF100
View Property














