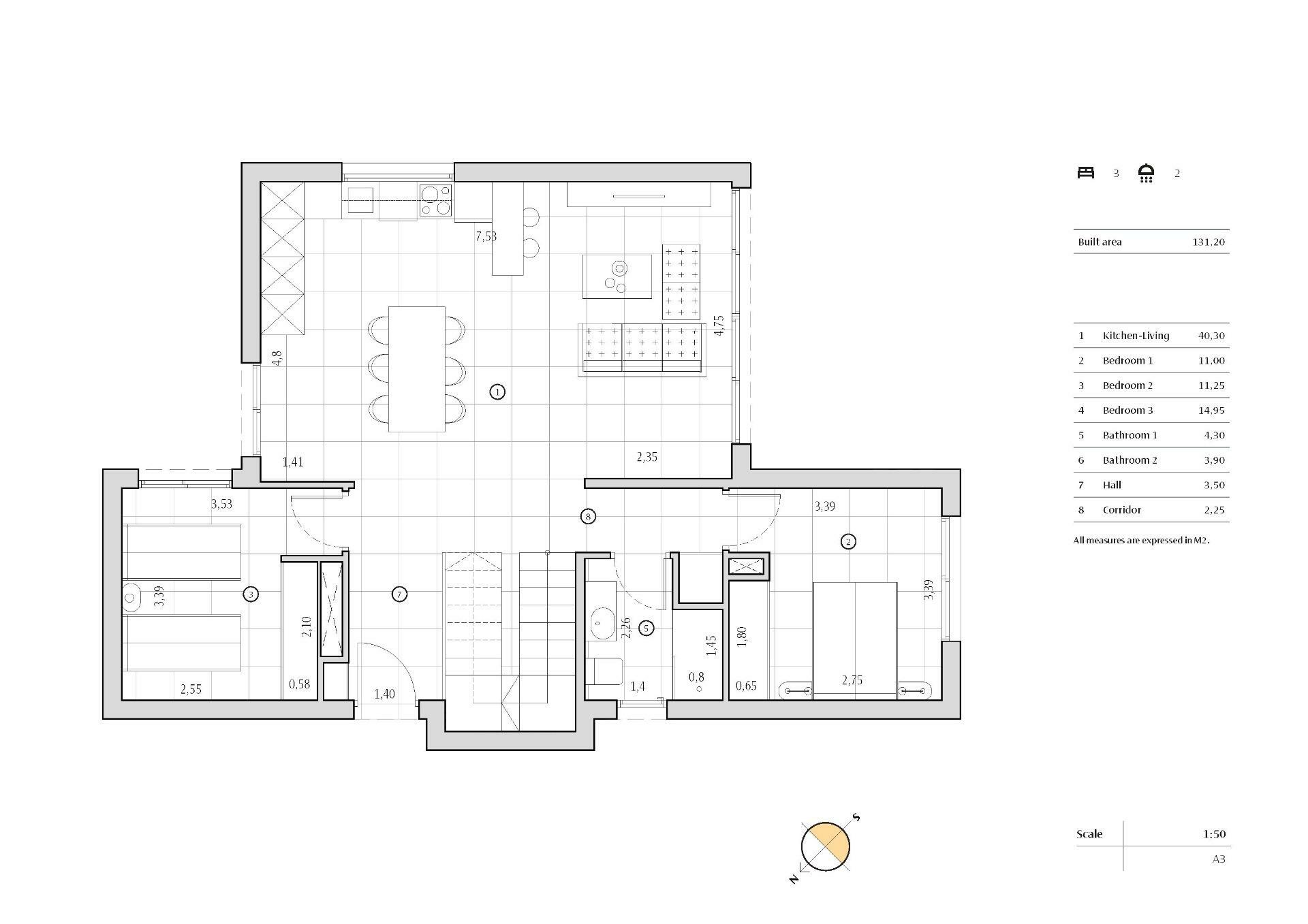
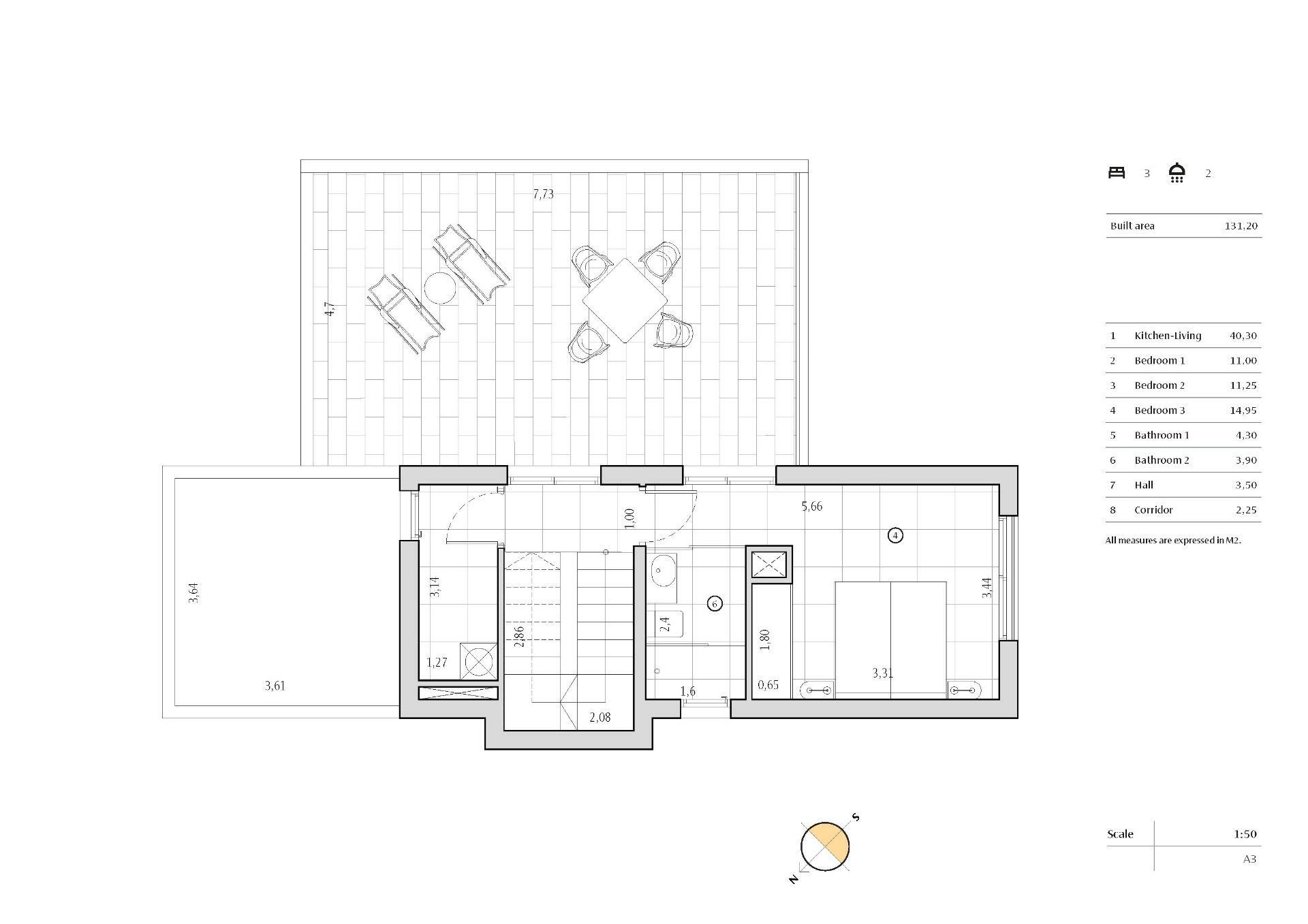
New build villas in algorfa
Villa
Algorfa
3
2
131m2
Similar Properties
La Finca Golf Resort
€573,000
New build semi-detached villas with private pool in la finca golf resort, algorfa
Ref: P32215
View PropertyLa Finca Golf Resort
€579,000
Luxury new build villas next to la finca golf in algorfa
Ref: P32140
View PropertyLa Finca Golf Resort
€400,000
New build villas in la finca golf resort algorfa
Ref: P32130
View Property




















