San Miguel de Salinas / San Miguel de Salinas / P5027
New build bungalow apartments in san miguel de salinas
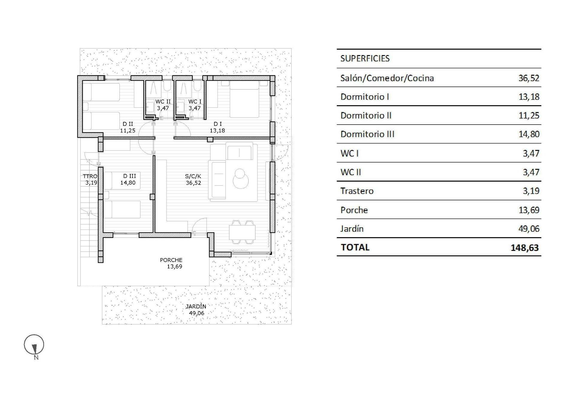
Ground Floor Apartment
San Miguel de Salinas
3
2
82m2
Similar Properties
€329,990
Discover modern living at the new residential development in san miguel de salinas
Ref: P31331
View Property€199,900
Newly built bungalows in san miguel de salinas with 2 communal swimming pools
Ref: P27740
View Property










