Los Alcázares / Los Alcázares / P32769
New build golf front apartments and villas in la serena golf los alcazares
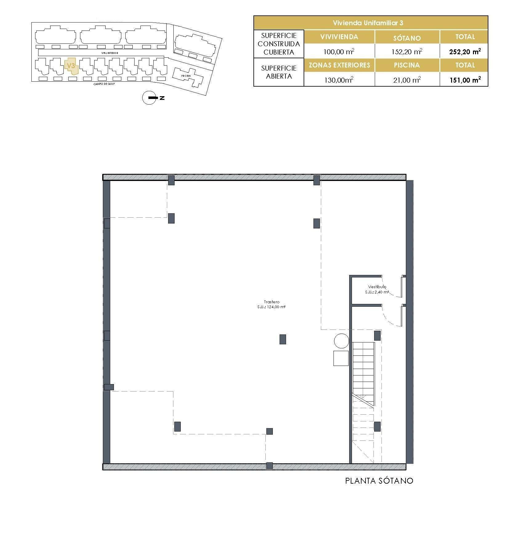
Villa
Los Alcázares
3
2
252m2
Similar Properties
Los Alcázares
€369,000
New build golf front apartments and villas in la serena golf los alcazares
Ref: P32774
View PropertyLos Alcázares
€408,000
New build golf front apartments and villas in la serena golf los alcazares
Ref: P32772
View Property















