Murcia / P32594
New build duplex penthouses in murcia city center near plaza mayor
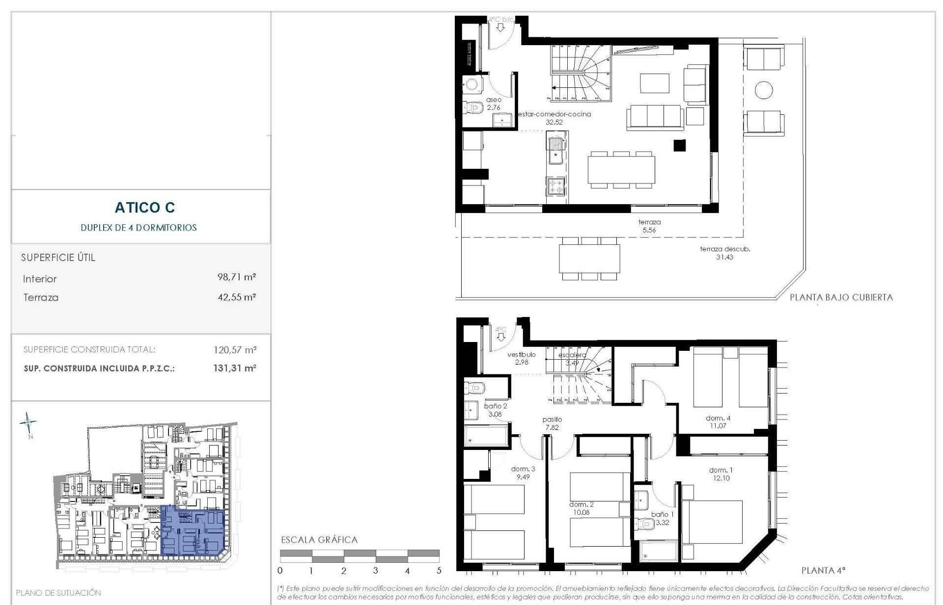
Penthouse
4
2
130m2
Similar Properties
Sucina
€359,900
New build semi detached villas in sucina: last unit fully equipped and ready to move in
Ref: P32552
View Property



























