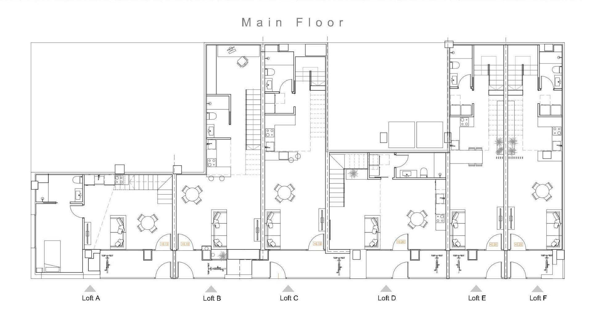
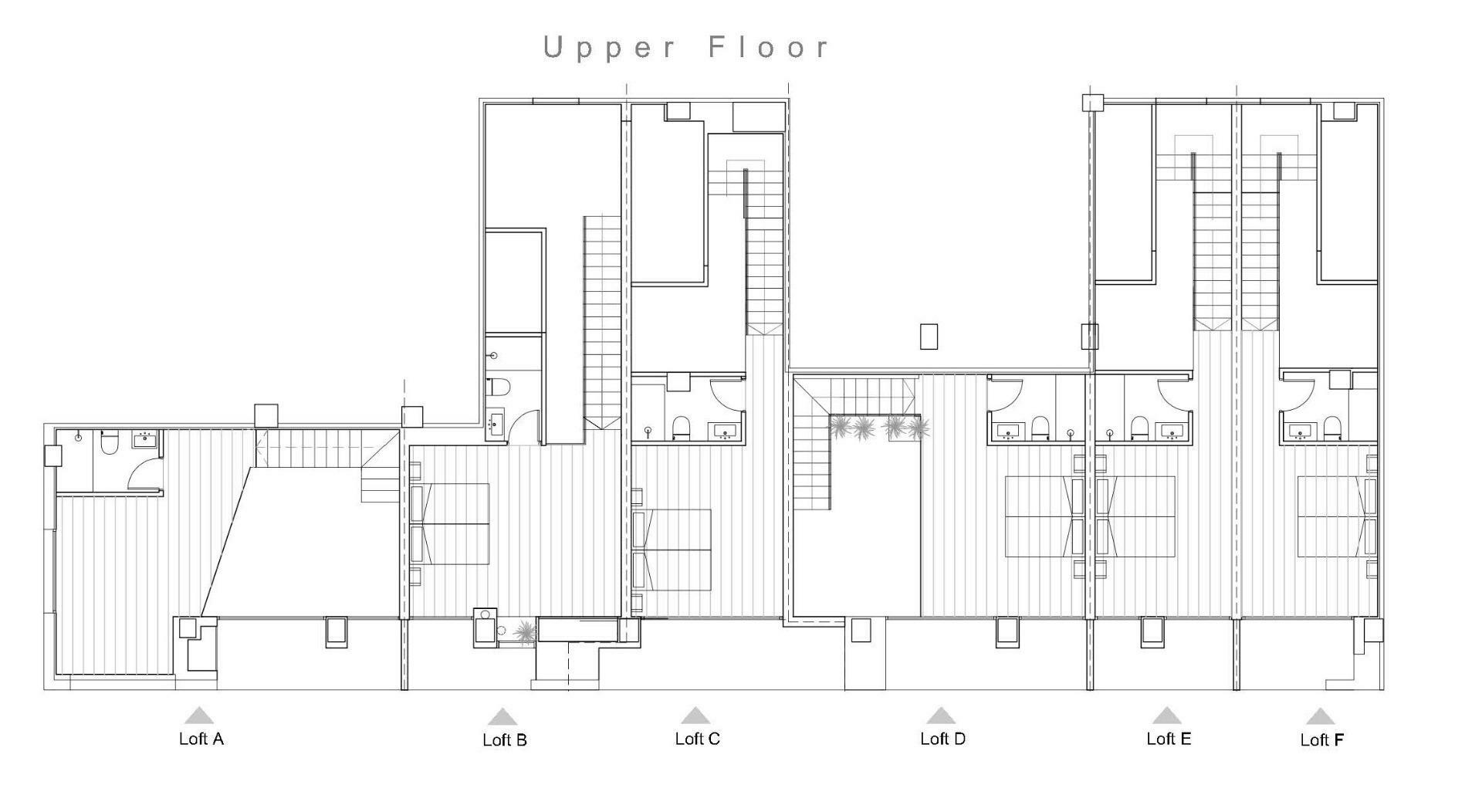
Modern duplex loft apartments in the heart of alicante
Ground Floor Apartment
Alicante
2
2
90m2


















