Cuevas del Almanzora / Cuevas del Almanzora / P2579
Stunning new build villas in desert springs resort
Villa
Cuevas del Almanzora
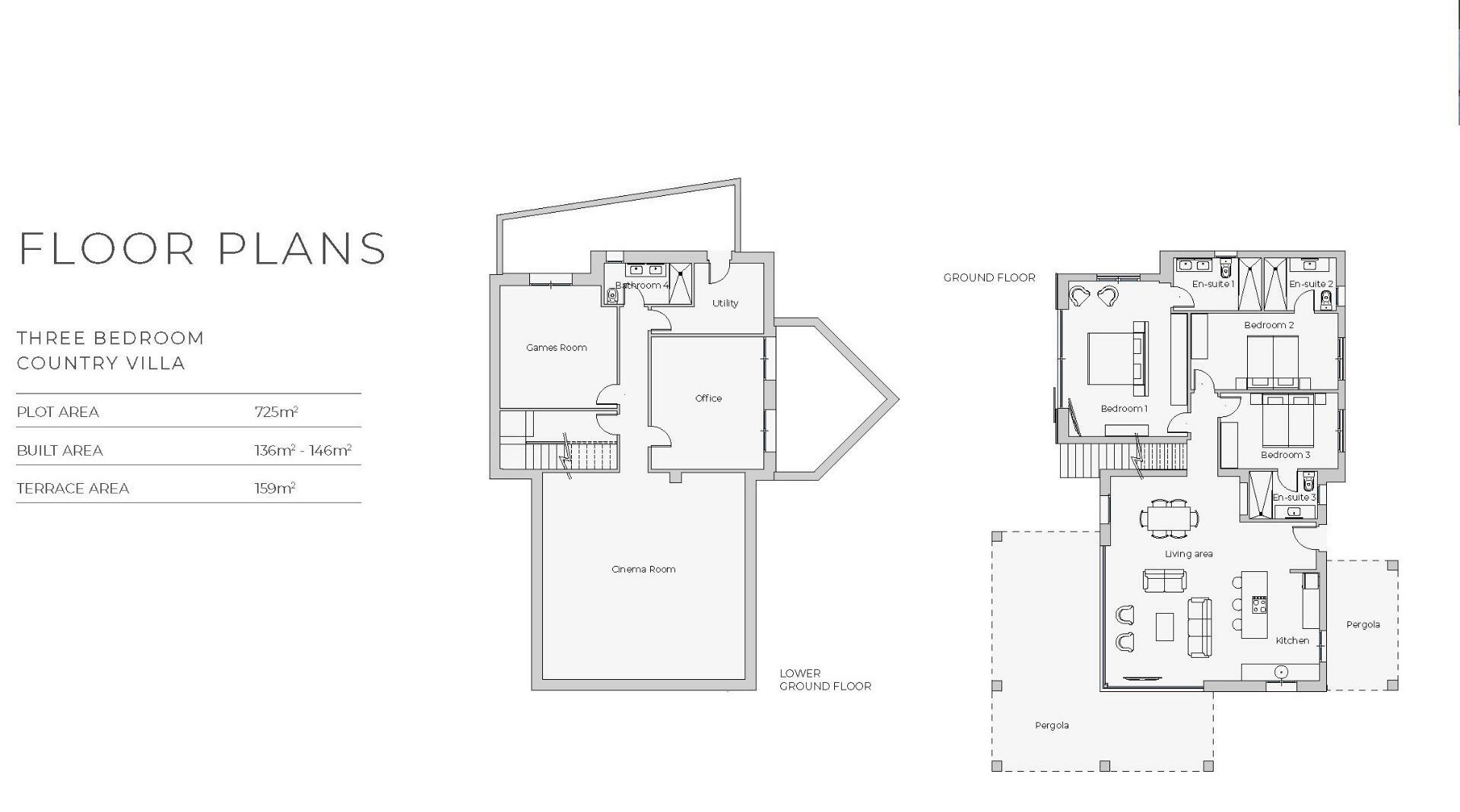
3
4
146m2










