Cuevas del Almanzora / Cuevas del Almanzora / P2578
Stunning new build villas in desert springs resort
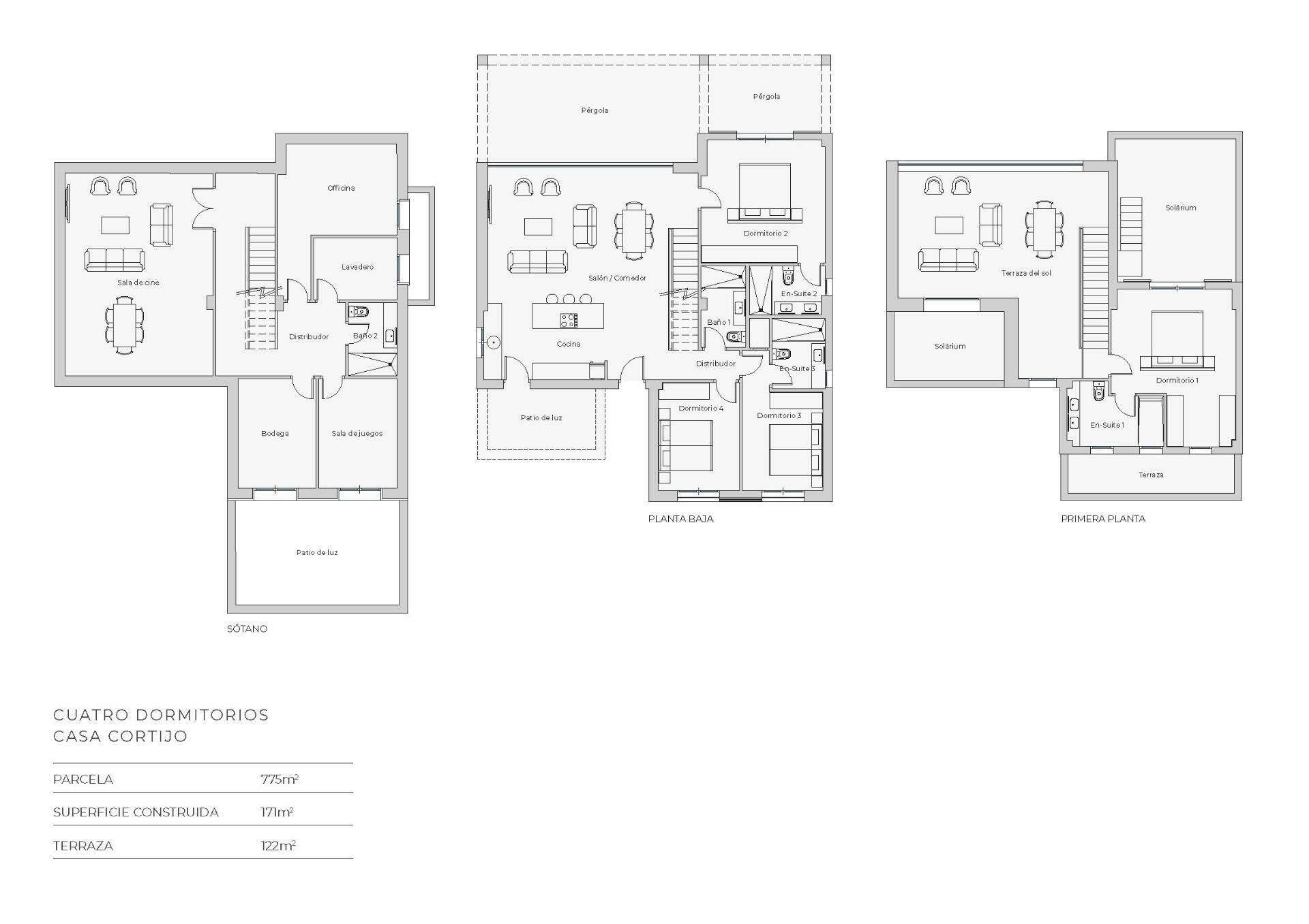
Villa
Cuevas del Almanzora
4
5
171m2











