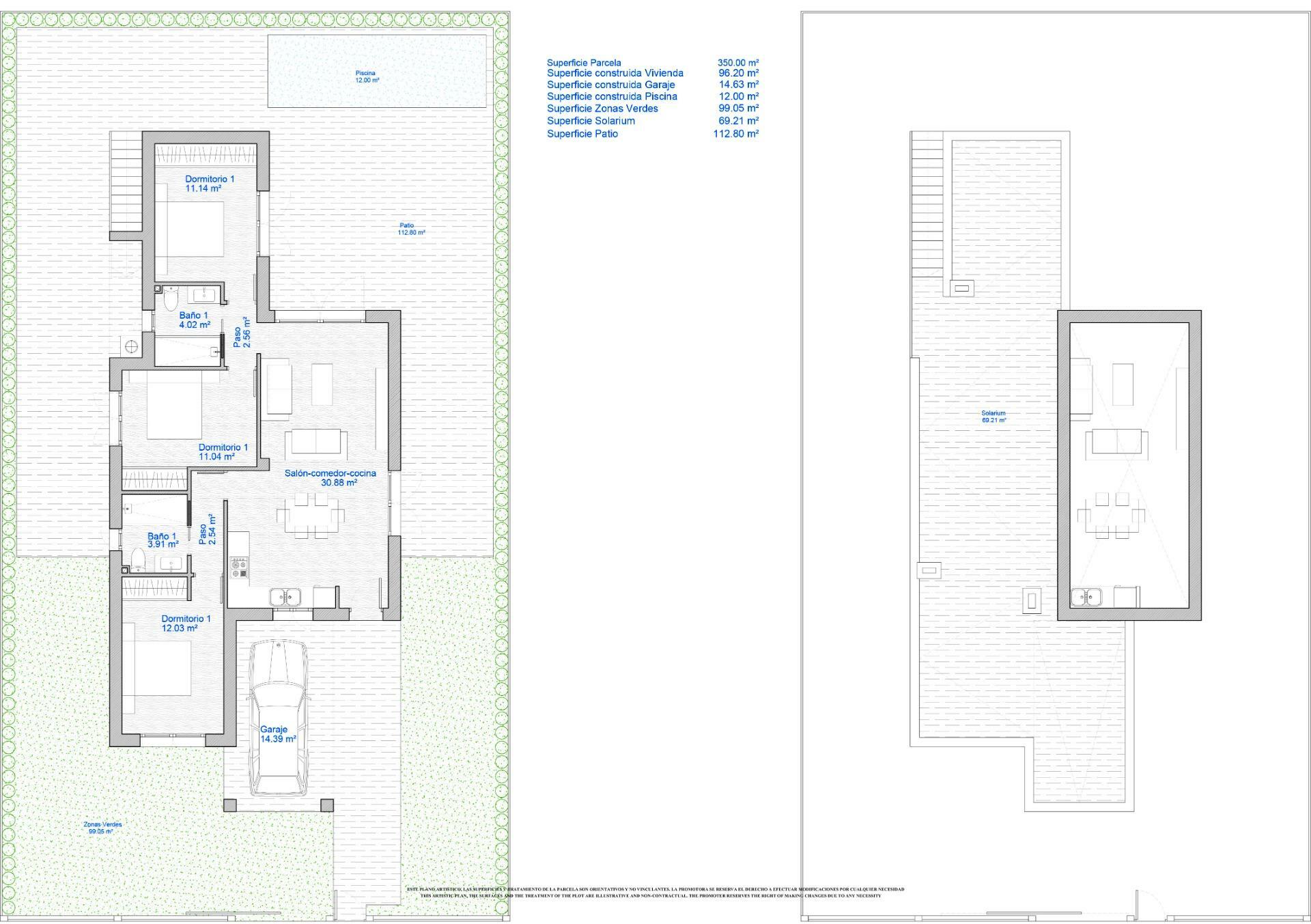
New build villas in los alcazares
Villa
Los Alcázares
3
2
110m2
Similar Properties
Los Alcázares
€269,900
Walk to Beach. Semi Detached Villa with Garage in Los Alcázares
Ref: ALC62
View PropertyLos Alcázares
€357,000
New-build townhouses on the frontline of la serena golf in los alcázares
Ref: P31882
View PropertyLos Alcázares
€399,000
Walk to Beach! Modern New 3 Bed 1ST Floor Apartments in Los Alcázares. Ready June 2026
Ref: LAF02
View Property










